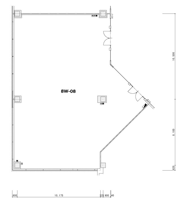
8W-08 ブースNo.8W-08 面積 251.76m²(76.29坪) フロア 8F 位置 窓側 状態 空室 月額賃共費(税別) 648,460円 お問い合わせ オフィスについて入居の流れ・申込詳細を見る 同じ坪数のその他の空室一覧 50〜100坪 ブースNo. m² 坪 フロア 詳細 8E-07 283.40m² 85.87坪 8F 詳細 検索・空室一覧へ戻る